Gemeinde investiert 640.000 Euro in die Kindergartenerweiterung. Lindwedel investiert weiter in Zukunft und Infrastruktur. Die südlichste Gemeinde im Heidekreis ist bei Neubürgern sehr beliebt und der Zuzug ist ungebrochen.

Lindwedel weiter auf Wachstumskurs

Gemeinde investiert 640.000 Euro in die Kindergartenerweiterung

Lindwedel investiert weiter in Zukunft und Infrastruktur. Die südlichste Gemeinde im Heidekreis ist bei Neubürgern sehr beliebt und der Zuzug ist ungebrochen. Dazu beigetragen hat neben der guten Lage nahe der Landeshauptstadt vorallem günstiges kommunales Bauland, eine gute Infrastruktur mit Bahn und Einkaufsmöglichkeiten und nicht zuletzt auch ein wachsendes Angebot für die Jüngsten in der Gemeinde. Mit der kürzlich vom Rat beschlossenen Erweiterung der Kindertagesstätte Eulennest geht die Gemeinde nun noch einen Schritt weiter: Mit einem Neubau soll die Platznot im Kindergarten beseitigt und die bislang getrennten Gebäude Kindergarten und „Alte Schule“ auf dem Grundstück verbunden werden. Es entsteht damit ein bedarfsgerechter und  moderner Kindergarten unter einem Dach, freuen sich Bürgermeister Artur Minke und Gemeindedirektor Björn Gehrs.

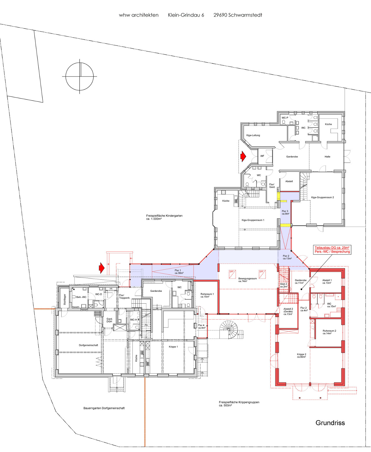
Nötig wurde der Bau, weil durch wachsende Kinder und Gruppenzahlen das bisherige Raumangebot nicht mehr ausreichte, wie auch eine Begehung im letzten Herbst ergab. Mit dem Neubau wird Platz für eine weitere Krippengruppe mit ca. 105 qm sowie eines zentralen Bewegungsraumes mit ca. 75 qm im Erdgeschoss geschaffen. Dieser fungiert  als „bauliche Klammer“ zwischen den beiden vorhanden Gebäuden auf dem Grundstück. Der Vorteil: Alle Kinder können dann in einem zusammenhängenden Gebäude untergebracht werden. Zusätzlich entstehen in dem Erweiterungsneubau dringend benötigte zentrale Abstellräume mit ca. 30 qm, zusätzliche Personal-WCs und ein Besprechungsraum mit ca. 25 qm sowie ein ausbaufähiges Dachgeschoss für eine weitere Kindergartengruppe mit ca. 75 qm, erläutert Architekt Wolfgang Heuer-Wischhoff. Insgesamt erweitert die Gemeinde Lindwedel mit dieser Baumaßnahme den Kindergarten um eine Nutzfläche von ca. 365 qm im Erdgeschoss und Dachgeschoss und mit einem veranschlagten Gesamtinvestitionsvolumen von 640.000,00 €. Das Vorhaben soll in diesem Frühjahr begonnen und bis zum Ende 2015 in Betrieb genommen werden.

Süd-Ansicht Kiga Lindwedel


Ebenfalls auf Hochtouren laufen die Planungen für die Erweiterung der Grundschule und der Bau einer Mensa in Lindwedel. Dort besteht ebenfalls Raumbedarf. Hier sollen im Frühjahr die erforderlichen Ratsbeschlüsse und Kostenvereinbarungen zwischen Gemeinde und Samtgemeinde getroffen werden.


Vorstellung der neuen Pläne für die Kindergartenerweiterung in Lindwedel
Zum Foto: Auf Zukunft ausgerichtet - Vorstellung der neuen Pläne für die Kindergartenerweiterung in Lindwedel (v.l. Gemeindedirektor Björn Gehrs und sein Stellvertreter Martin Geisel, Architekt Wolfgang Heuer-Wischhoff und Bürgermeister Artur Minke).

 

Grundriss Kiga Lindwedel

 

 

   
buchtipp-2026-04-18Die Samtgemeindebücherei im Uhle-Hof empfiehlt in dieser Woche folgende neue Bücher für Erwachsene:

mehr...
buchtipp-2026-04-25Die Samtgemeindebücherei im Uhle-Hof empfiehlt in dieser Woche folgende neue Bücher für Kinder ab 10 Jahren:

mehr...
buchtipp-artikel-2026-03-osternDie Samtgemeindebücherei Schwarmstedt hat in den Osterferien geöffnet. Lediglich an den beiden Donnerstagen leibt die Bücherei geschlossen.

mehr...
buchtipp-2026-03-21Die Samtgemeindebücherei im Uhle-Hof empfiehlt in dieser Woche folgende neue Bücher für Kinder ab 7 Jahren:

mehr...
buchtipp-2026-03-14Die Samtgemeindebücherei im Uhle-Hof empfiehlt in dieser Woche folgende neue Bücher für Erwachsene:

mehr...
buchtipp-2026-03-07Die Samtgemeindebücherei im Uhle-Hof empfiehlt in dieser Woche folgende Pocket- und Book-Tonies für Kinder ab 5 Jahren:

mehr...
buchtipp-2026-02-28Die Samtgemeindebücherei im Uhle-Hof empfiehlt in dieser Woche folgende neue Romane für Erwachsene:

mehr...
buchtipp-2026-02-21Die Samtgemeindebücherei im Uhle-Hof empfiehlt in dieser Woche folgende neue Bücher für Kinder ab 8 Jahren:

mehr...
buchtipp-2026-02-07Die Samtgemeindebücherei im Uhle-Hof empfiehlt in dieser Woche folgende neue Romane für Erwachsene:

mehr...
buchtipp-2026-01-24Die Samtgemeindebücherei im Uhle-Hof empfiehlt in dieser Woche folgende neue Romane für Erwachsene:

mehr...
buchtipp-2026-01-17Die Samtgemeindebücherei im Uhle-Hof empfiehlt in dieser Woche folgende neue Bilderbücher für Kinder ab 3 Jahren:

mehr...
buchtipp-2026-01-10Die Samtgemeindebücherei im Uhle-Hof empfiehlt in dieser Woche folgende neue Romane für Erwachsene:

mehr...
buchtipp-artikel-2021-12-fDie Samtgemeindebücherei Schwarmstedt bleibt wegen Betriebsferien und anschließender Inventur vom 22. Dezember 2025 bis einschließlich 06. Januar 2026 geschlossen. Die letzte Möglichkeit zur Ausleihe ist am Freitag, den 19.12.2025 und die erste Ausleihe wird am Donnerstag, den 08.01.2026 wieder möglich sein.

mehr...
buchtipp-2025-12-20Die Samtgemeindebücherei im Uhle-Hof empfiehlt in dieser Woche folgende neue Weihnachtsromane für Frauen:

mehr...
buchtipp-2025-12-13Die Samtgemeindebücherei im Uhle-Hof empfiehlt in dieser Woche folgende neue Weihnachtsbilderbücher für Kinder ab 4 Jahren:

mehr...
buchtipp-2025-11-29Die Samtgemeindebücherei im Uhle-Hof empfiehlt in dieser Woche folgende neue Bilderbücher für Kinder ab 18 Monaten:

mehr...
buchtipp-2025-11-22Die Samtgemeindebücherei im Uhle-Hof empfiehlt in dieser Woche folgende neue Bücher für Erwachsene:

mehr...
buchtipp-2025-11-15Die Samtgemeindebücherei im Uhle-Hof empfiehlt in dieser Woche folgende neue Bücher für Kinder ab 8 Jahren:

mehr...
buchtipp-2025-11-08Die Samtgemeindebücherei im Uhle-Hof empfiehlt in dieser Woche folgende neue Bücher für Erwachsene:

mehr...
buchtipp-2025-11-01Die Samtgemeindebücherei im Uhle-Hof empfiehlt in dieser Woche folgende neue Bilderbücher für Kinder ab 3 Jahren:

mehr...
buchtipp-2025-10-25Die Samtgemeindebücherei im Uhle-Hof empfiehlt in dieser Woche folgende neue Bücher für Erwachsene:

mehr...
buchtipp-2025-08-30Die Samtgemeindebücherei im Uhle-Hof empfiehlt in dieser Woche folgende neue Bücher für Leseanfänger der 1. und 2. Klassen aus der Serie Bücherhelden:

mehr...
buchtipp-2025-08-15Die Samtgemeindebücherei im Uhle-Hof empfiehlt in dieser Woche folgende neue Bilderbücher für Kinder ab 4 Jahren:

mehr...
buchtipp-2025-08-08Die Samtgemeindebücherei im Uhle-Hof empfiehlt in dieser Woche folgende neue Bücher für Erwachsene:

mehr...
buchtipp-2024-01-27Die Samtgemeindebücherei im Uhle-Hof empfiehlt in dieser Woche folgende neue Bücher für Kinder ab 9 Jahren:

mehr...
buchtipp-artikel-2024-01-oeffnungsAb dem 01.Februar 2024 gelten für die Samtgemeindebücherei Schwarmstedt vorrübergehend für ca. 4-6 Monate neue Öffnungszeiten: Montag geschlossen, Dienstag 15-18 Uhr, Mittwoch geschlossen, Donnerstag 15-18 Uhr und Freitag geschlossen.

mehr...
   

Kontakt Rathaus  

Samtgemeinde Schwarmstedt
Am Markt 1
29690 Schwarmstedt

Tel. (05071) 809 - 0
Fax. (0511) 93 69 717 62
E-Mail: rathaus@schwarmstedt.de

thumbnail Feedback, Mängelmeldung
thumbnail Terminbuchung
   

Öffnungszeiten  

Öffnungszeiten Bücherei

Montag 15-18 Uhr
Dienstag 15-18 Uhr
Mittwoch geschlossen
Donnerstag 15-19 Uhr
Freitag 9-12 Uhr

Tel. (05071) 800-400

eMail: buecherei@schwarmstedt.de

   

Veranstaltungskalender  

   

Aktuelles  

27.04.2026
aktuelles-2026-05-sporthbuchsanSanierung gestartet: Sporthalle Buchholz (Aller) voraussichtlich ab Mitte...mehr...
24.04.2026
aktuelles-2026-05-klimaschutzMeilenstein für den Klimaschutz: Samtgemeinde Schwarmstedt erhält 250.000...mehr...
20.04.2026
aktuelles-2026-05-hallenbad-ecErfolgsmodell Kartenzahlung: Schwarmstedter Hallenbad setzt auf bargeldlosen...mehr...
20.04.2026
bekanntmachung-gilten-2026-05-ratDie nächste Sitzung des Bau- und Wegeausschusses der Gemeinde Gilten - als...mehr...
17.04.2026
hallenbadschliessung-am-21-04-2026-ab-15-00-uhrAus personellen Gründen muss das Hallenbad am mehr...
14.04.2026
bekanntmachung-gilten-2026-04-ratDie nächste Sitzung des Rates der Gemeinde Gilten findet am 22.04.2026, um...mehr...
   
   

 

  Samtgemeinde Schwarmstedt

Postfach 1154
29684 Schwarmstedt

Hausanschrift:
Rathaus
Am Markt 1
29690 Schwarmstedt

Vorsprache nur nach Terminvereinbarung

Telefon (Zentrale): 05071/809-0
Telefon (Bürgerbüro): 05071/809-99
E-Mail: rathaus@schwarmstedt.de
Kontakt (Was erledige ich wo?)

Kontodaten der Samtgemeindekasse

Sprechzeiten Bürgerbüro
(Meldeamt, Ausweise/Pässe, Fundbüro, Kfz-Zulassung, Gewerbe/Gaststätten):
Montag, Mittwoch & Freitag 08:30 – 14:00 Uhr
Dienstag & Donnerstag 08:30 – 12:00 Uhr 
  13:00 – 18:30 Uhr


Sprechzeiten Sozialamt
(Bürgergeld, Sozialhilfe, Wohngeld, Asylbewerberleistungen, Unterbringung):
Montag – Freitag, 10:00 – 12:00 Uhr
Donnerstag 16:00 – 18:00 Uhr
   
allgemeine Sprechzeiten:
Montag – Freitag, 08:30 – 12:00 Uhr
Montag – Mittwoch, 13:00 – 15:00 Uhr
Donnerstag 14:00 – 18:00 Uhr
   
 
Impressum Datenschutz Barrierefreiheit Quellenangaben 
Wir benutzen Cookies
Wir nutzen Cookies auf unserer Website. Einige von ihnen sind essenziell für den Betrieb der Seite, während andere uns helfen, diese Website und die Nutzererfahrung zu verbessern (Tracking Cookies). Sie können selbst entscheiden, ob Sie die Cookies zulassen möchten.
Bitte beachten Sie, dass bei einer Ablehnung womöglich nicht mehr alle Funktionalitäten der Seite zur Verfügung stehen.